We partner on potential

With over 17,000 plots across 75+ sites, our live portfolio reflects the confidence placed in us by landowners, communities
and housebuilders alike. From unlocking green-belt to urban edge extensions, every site we promote has passed our rigorous "insight before investment" threshold.

100% Card

100%

Gold Award for Overall Customer Satisfaction.

 

Over 90% Card

Over 90%

of our portfolio is located in areas with strong demand indicators.

 

100% Card

100%

planning success rate for applications determined in the year. FY2024.

 

Our Portfolio

See where we’re making land count.

All
Monks Farm Grove

Southern Region

Land at Monks Farm, Grove

The site was a joint venture between Gleeson & Gallagher Estates. Planning was secured for up to 400 new homes and an extension to the Grove CE Primary school.

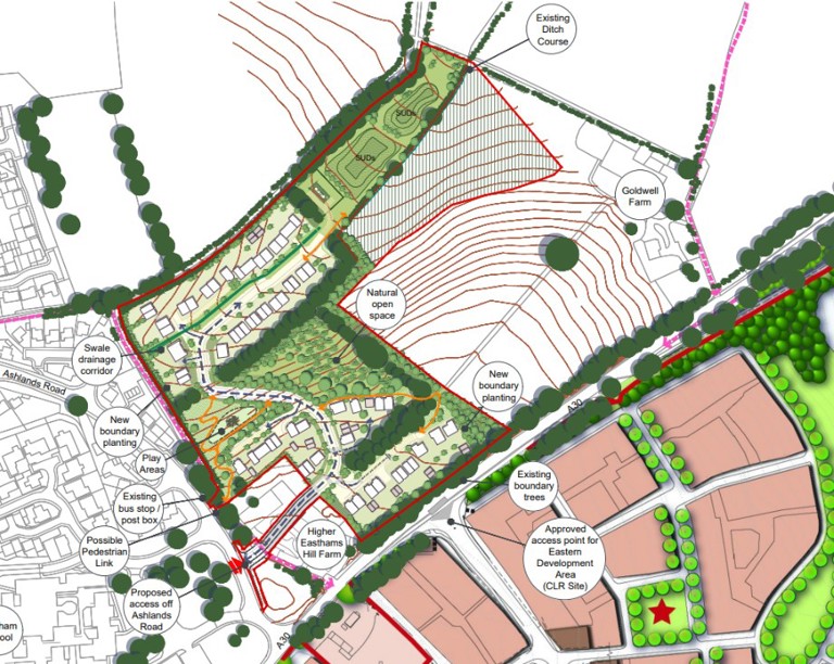
CREWKERNE

Western Region

Land at Goldwell Farm, Crewkerne

Planning success through sustainable development.

GREAT SOMERFORD PHASE 2

Western Region

Land at Great Somerford - Phase One & Phase Two

Regeneration through Neighbourhood allocation.

 

We couldn't find any articles matching your filter. Try adjusting your selection to see more results.

Why our track record matters

The value we create doesn’t stop at planning consent. Every successful site represents a chain of shared wins, for the landowner, for the community and for the future homeowners who benefit from places that are planned with care, not compromise.

Melksham Banner