We partner on potential

With over 17,000 plots across 75+ sites, our live portfolio reflects the confidence placed in us by landowners, communities
and housebuilders alike. From unlocking green-belt to urban edge extensions, every site we promote has passed our rigorous "insight before investment" threshold.

100% Card

100%

Gold Award for Overall Customer Satisfaction.

 

Over 90% Card

Over 90%

of our portfolio is located in areas with strong demand indicators.

 

100% Card

100%

planning success rate for applications determined in the year. FY2024.

 

Our Portfolio

See where we’re making land count.

All
Templecombe

Western Region

Land at Manor Farm, Templecombe

Achieving planning at a local level.

Malmesbury

Western Region

Land South of Filands, Malmesbury - Phase Two

Delivering much needed new housing and community facilities.

Crowle

Western Region

Land at Froxmere Road, Crowle

Planning via appeal.

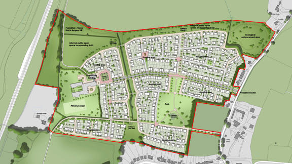
Melksham

Western Region

Land at Blackmore Farm, Melksham

Strategic success through plan promotion and collaborative working.

Land North Of Clayton Mills, HASSOCKS

Southern Region

Land at Hassocks, Ockley Lane

Discussions our expert team had early on in the planning application process facilitated approval being given in early 2020.

Boorley Green, HEDGE END

Southern Region

Land at Hedge End, Boorley

One of the key challenges for unlocking this site was aiming to reduce the use of vehicles in favour of more sustainable methods.

 

We couldn't find any articles matching your filter. Try adjusting your selection to see more results.

Why our track record matters

The value we create doesn’t stop at planning consent. Every successful site represents a chain of shared wins, for the landowner, for the community and for the future homeowners who benefit from places that are planned with care, not compromise.

Melksham Banner