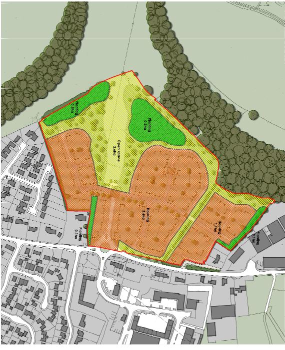
Gleeson Land identified the optimum time to submit a planning application on this Green Belt site with planning permission subsequently granted at appeal. The site was promoted into the emerging Local Plan for Mole Valley as a Green Belt release and had secured a draft allocation in the submitted Plan which had progressed through examination. However, following Michael Gove announcing a consultation on the NPPF in December 2022, Mole Valley decided to remove all green belt sites from the Plan. Progress of the Plan stalled as a result.Through the promotion period, Gleeson Land had prepared the baseline information on the site both to support the site’s promotion and be ready for a planning application to support the draft allocation in the emerging Plan. This allowed us to react quickly when Mole Valley removed the green belt sites and submit an outline planning application ahead of any competing sites.The planning application was registered in February 2023, refused at committee in June 2023 with our appeal lodged the same month. Following a Public Inquiry our appeal was allowed in November 2023.
Following successfully promoting this site through the Local Plan process a planning application was submitted for up to 525 residential dwellings, green infrastructure in the form of a linear park and employment uses. The application was submitted in outline with all matters reserved other than the principle means of access from Water Lane. As part of the proposal we demonstrated how a bus route could access the site from the west and exit to the south.
31.51 Ha
up to 525
Employment provided on site and Green Infrastructure providing key links and a green corridor.
Arun District Council
CALA Homes
Due to the South Downs National Park being located to the north and partly to the south of this site it was important that we took a landscape led approach to make sure views were the key consideration for the masterplan. We achieved approval on this site by setting the development back from the north and varying the heights of the proposed development through the use of parameter plans. We worked closely with Arun District Council and the Town Council throughout the process.
On the 27th August 2019 outline planning was granted, the site was then sold to CALA Homes.
5.9 Ha
121
Medway Council
Linden Homes (Housebuilder)
Medway Council were facing a severe Housing Land Supply shortage and housing delivery shortfall. Our land team were able to identify the site and through effective planning we were able to submit a planning application for 121 units. Helping the local council towards their housing supply target.
Outline planning was granted for 121 units on the 25th October 2017.
An outline planning application for up to 680 residential units, including a local center and small shop, land for a 2 form entry primary school and formal and informal open space provision. Details of a new access junction arrangement were also submitted as part of the planning application.
27.4 Ha
up to 680
A new local centre, small shop, two form entry primary school, informal and formal play space and new access junction.
Eastleigh Borough Council
Bellway and Miller Homes
One of the key challenges as part of this application was aiming to reduce the use of vehicles in favour of more sustainable methods. Travel behavior in Hedge End was typically centered around car use. The area had higher car use percentage than the UK average. As part of our application provision was made for Bus and Cycle only pathways as well as strategic footpaths to promote sustainable transport and ease pressure on local roads.
The Planning Application was granted at appeal for a new sustainable neighborhood comprising of 680 residential units and a two form entry primary school. The application included space for small scale retail or a community and healthcare area, it also provided open space and sports provision for the wider community. Hedge End was eventually sold in a deal with two national housebuilders.
Gleeson Land successfully promoted this site through the Neighbourhood Plan and then submitted a planning application for the demolition of the existing vacant buildings and redevelopment of the site for 20 dwellings and associated infrastructure.
0.97 Ha
20 dwellings
Demolition of existing property.
Wiltshire Council
Housebuilder
The site had limited access with only one point of access achievable. Our technical and planning teams created a solution to this allowing the site to be allocated within the Neighbourhood Plan. The site creates its own identity whilst respecting the local character of the area through a mix of housing types designed to reflect defined local requirements.
The site was allocated within the Great Somerford Neighbourhood Plan, providing 20 new residential homes and rejuvenating a brownfield site. Planning permission was granted in 2020. The site was sold to a housebuilder.
An outline application was submitted for up to 108 residential units.
3.87 Ha
up to 108 units
Bovis (Housebuilder)
This site was called in by the Secretary of State for review which meant prior to the application being determined a planning inquiry would need to take place. We worked closely with the local planning authority to take this site through the inquiry and received a positive outcome.
The site was sold later in October to a national housebuilder a great outcome for our landowner.
A planning application was submitted for up to 400 dwellings, extension to the existing Grove CE primary school, associated landscaping and infrastructure along with access.
14.75
up to 400
Extension to the existing local primary school.
Vale of White Horse Council
David Wilson Homes
The site was a joint venture between Gleeson and Gallagher Estates. Planning was submitted for 400 units and an extension to the Grove CE primary school. The sites ‘Monks Farm’ had been successfully promoted into the adopted local plan, by our planning and technical team, as a strategic allocated housing site. It was important as part of this planning application to understand the needs of the school and include those as part of the masterplan.
Planning permission was granted in April 2021, after some amendments to the technical drawings. The site was then sold to David Wilson Homes in August 2021, a great outcome for our landowner.
The site was the second phase of development at Malmesbury. Following the earlier success an outline application was submitted in 2016 for up to 71 dwellings, to help Wiltshire Council address a shortfall in their housing land supply. The application was refused and appealed, however the Council’s housing land supply recovered before the appeal could be heard and as such it was withdrawn.
3.63 Ha
up to 71 units
Bloor (Housebuilder)
The Council’s housing land supply was monitored and an opportunity to re-submit the application was identified in 2019 when the supply fell again. The application provided much needed market and affordable housing, along with a new access, cycleways, public open space, and children’s play areas. It was well received by Council Officers, who recommended approval.
The application was approved by the Planning Committee in September 2020 and then sold to a national housebuilder in December 2020.
An outline planning application was submitted for up to 170 dwellings including vehicle access from the A350, public open space, landscaping and play areas and demolition of existing building.
10.07 Ha
up to 170
Demolition of existing buildings.
Dorset Council
Redrow
The site required an Electrical diversion which saw our technical team working closely with SSE to provide electrical infrastructure to the site. Alongside this a slope stability assessments was completed due to the proximity to the former quarry. The depth of our assessments ensured the application went smoothly during the planning determination period.
Outline planning for 170 homes was granted on the 16th March 2017 for up to 170 units. The site was then sold to Redrow homes.
Gleeson Land successfully promoted this site through the plan making process and then went on to submit the planning application. The application was for the phased development of approximately 760 dwellings, including 60 units of assisted living homes/ older person accommodation, a local centre, a primary school, incorporating community facilities and open space.
34.65 Ha (5.69 Ha were Gleeson)
Approximately 760 Units including 60 units of assisted living homes.
A local centre, primary school and open space.
Linden Homes
This site was part of a wider Strategic Development Location (SDL) as identified by Wokingham’s local plan. Due to the scale of the SDL a infrastructure delivery plan had to be prepared and worked through with the development partners and the Council. An added complication related to the development parcels coming forward at different times. This was overcome by working closely with the Council and Consortium to bring the site forward.
The application was successfully approved in 2015 and has now been built out.
Our joint application with Bovis Homes was granted on the 2nd April 2015 and formed the next stage of the SDL. The site was then sold to Linden Homes.
An outline planning application was submitted for up to 75 dwellings and associated infrastructure.
3.44 Ha
up to 75
Mendip Council
The land to the immediate north of this case study was, at the time, allocated within the Council’s Site Allocations development plan, but it left this site outside the newly defined settlement boundary. Through the planning application, we demonstrated how the site was in keeping and sympathetic to the rural fringe character of the area and should come forward for residential development.
Planning permission was allowed at appeal in May 2022, and we received bids from several national housebuilders to take this site forward to reserved matters.
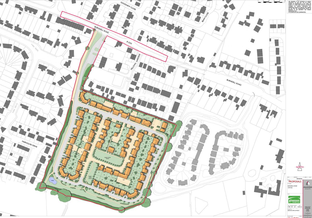
An outline planning application was submitted for 500 residential dwellings along with land for a two form entry primary school and community building. Land for a bridleway link was also included between Hassocks and Burgess Hill.
30ha
500 dwellings
A 2 form entry Primary School and Community BuildingLand for a bridleway link
Mid Sussex Council
Taylor Wimpey
Improvements to the pedestrian access across the railway line were required which meant discussions with network rail took place early on in the planning application process. The masterplan also considered the location for the primary school and local center taking into account the surrounding land uses.
Approved 16th March 2020.
An outline planning application was submitted for up to 50 units along with the provision of land for a community use and public open space.
3.9 Ha
up to 50
Landscape, heritage and impact on the character and appearance of the area were key aspects of this application. It was determined at committee in April 2020 with Members agreeing with the officer recommendation and accepting that whilst the site fell outside of the settlement boundary, the merits of the proposal including the delivery of much needed housing in light of a shortfall outweighed any harm.
The permission allowed us to move forward with a further phase with our landowner for 56 units, which we won on appeal in November 2022.
An outline planning application was submitted for up to 50 dwellings, open space, associated access and infrastructure. This site comprised of two arable fields, divided by a drainage ditch, which adjoin the built of extent of Bramley to the south and west.
4.7ha
50
Basingstoke and Dean Council
Bewley Homes
The suitability of the Site for residential use has been assessed through the Council’s Strategic Housing Land Availability Assessment (SHLAA) which found it “…worthy of further consideration for inclusion as a strategic site allocation in the Local Plan”. Through working with the Council we were able to provide additional information and work with the Council through the planning application successfully receiving outline planning permission in 2016.
Outline Approval was granted 25th April 2016.
An outline application was submitted for up to 200 dwellings and associated infrastructure and means of access.
13.8 Ha
up to 200
Barratt David Wilson
While this site had received a positive HELAA recommendation in an authority where an action plan was in place due to the land supply position the Council refused this application with 10 grounds of refusal. We worked closely with our project team to overcome 6 of the reasons for refusals ahead of the planning inquiry taking place. This left 4 reasons at the point the inquiry opened. One of which related to the legal agreement. When the application went to appeal the Inspector found that one of the reasons for refusals that related to foul water was unreasonable. Furthermore, the Inspector found there was no harm to local heritage and that the site would continue the natural progression of development in the town.
The application was approved at appeal thanks to the hard work of the team.
Planning permission was granted at appeal in early 2022, and the site was quicky sold to Barratt David Wilson.
Manor Farm, Tongham was a hybrid application that included, in outline 245 residential units, childrens play space and a new emergency access link, which was important for the whole town and a key element of the delivery of the site.
13.15 Ha
245
Guildford Council
Bellway
On a neighbouring site, the application included detailed proposals for the delivery of 17ha of open green space, known as a SANG (Suitable Alternative Natural Greenspace). SANG land was required by the local planning authority to mitigate the impacts from recreational use of future occupiers of the development on locally protected heathland, protecting ground nesting birds. We worked hard to find additional land which would fit the specific Natural England guidance to qualify as a suitable SANG and this is a great example of the Gleeson Team finding solutions to unlock land value for our landowners.
Whilst the team worked closely with the local authority to provide a proposal that met all policy requirements, the local Planning Committee overturned the positive recommendation for approval and consent was eventually secured via appeal in January 2018.
An outline application was submitted for up to 250 residential dwellings and associated infrastructure.
11.6 Ha
up to 250
Bovis Homes
This site was promoted for residential development, and was successfully allocated for 250 dwellings, alongside adjacent land for a total of 550 dwellings in the Arun Local Plan in 2018. The joint allocation required a close working relationship with the adjacent landowners. Each site prepared and submitted a standalone but complementary application at the same time with a shared design concept and internal spine road to meet the requirements of the site allocation.
Throughout the determination period we worked alongside Council Officers, the Parish Council, and the adjacent landowners to secure planning permission that was granted locally by Planning Committee in April 2019, before being sold to Hyde Housing in June 2019.